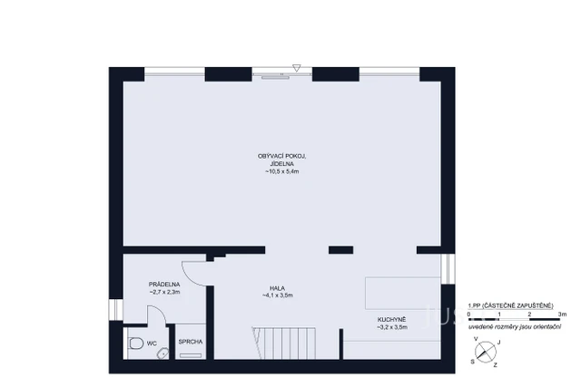
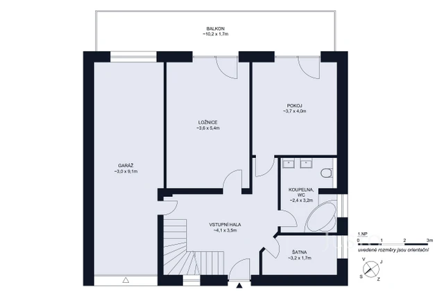
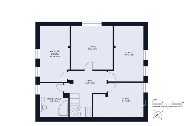
Prodej rodinného domu 233 m² s pozemkem 1608 m² + terasa 25 m² + balkón 20 m²
Hledáte velký dům na jedinečném místě? Přírodu na dosah, ale krajské město po ruce? Krb, bazén, terasa, garáž, velká zahrada a přístup až k Vltavě. Ve výhradním zastoupení majitelů vám nabízím prodej třípodlažního zděného domu z roku 2011 v Boršově nad Vltavou v Třešňové ulici – pouhých pár minut autem od Českých Budějovic. Kam se s rodinou a všemi těmi věcmi vejdete: • 5 velkých pokojů • 1 luxusní obývák s krbem • 2 kuchyně • samostatná šatna • prádelna • 2 koupelny, a k tomu další sprchový kout v suterénu • 3 WC v domě • vstupní hala, kde budete vítat hosty • garáž pro auto i uskladnění • další 2 parkovací místa před domem • venkovní krytý vyhřívaný bazén a venkovní sprcha A jak je to s plochami domu a pozemků? • zastavěná plocha domu je 116 m² • užitná plocha samotného domu 233 m² (pouze dům – suterén, 1.NP a 2.NP) • balkón cca 20 m² (1.NP) • terasa cca 25 m² (suterén) • garáž cca 25 m² (1.NP) • dohromady tedy 303 m² (dům, balkón, terasa, garáž) • a k tomu ještě cca 20 m² bazén • celková plocha pozemků včetně pozemku pod domem 1608 m² Majitelé se o dům starali pečlivě. Takže ačkoli se nejedná o novostavbu, můžete se do něj ihned nastěhovat. Využít ho můžete i dvougeneračně (2 kuchyně, 2 koupelny). Třešňová ulice je slepá, takže je tu klid. Užijete si pohled dolů od domu směrem k Vltavě. K ní máte přístup z vlastního pozemku. V suterénu domu vás potěší podlahové vytápění. Krbem v obývacím pokoji uděláte atmosféru. Dole v obýváku propojeném s jídelnou i kuchyní se sejde celá rodina. Můžete posedět, grilovat, anebo se koupat v bazénu s výhledem do zeleně a na řeku. Pozemek kolem domu je svažitý, ve spodní už jen velmi mírně (t. Přes spodní vstupní branku pak můžete vyrazit na procházku podél řeky buď směrem k Boršovu, anebo na druhou stranu k místnímu kempu. Z Boršova se dostanete pohodlně za pár minut autem přes jižní tangentu na nově vybudovaný úsek dálnici D3. Do centra ČB se dostanete z Boršova i s pomocí MHD. Oceníte doplňující informace na e-mail? Anebo se chcete rovnou přijet podívat na prohlídku domu? Vyplňte prosím formulář u inzerátu. Dostanete odpověď s doplňujícími informacemi do 20 minut na e-mail, který uvedete. (Zkontrolujte si, prosím, i složky "Spam" a "Nevyžádaná pošta". Občas se tam e-mail může zatoulat.)
- cena
- na dotaz
- adresa
- Třešňová 326, Boršov nad Vltavou
- ID nabídky
- J10914
- Stav nabídky
- rezervováno
- Budova
- Cihlová
- Stav objektu
- Velmi dobrý
- Plocha užitná
- 233 m²
- Celková plocha
- 303 m²
- Počet pokojů
- 5 a více pokojů
- Vybavení
- Ano
- Typ domu
- Patrový
- Poloha objektu
- Samostatný
- Umístění objektu
- Okraj obce
- Vlastnictví
- Osobní
- Zástavba
- Bydlení
- Plocha zastavěná
- 116 m²
- Plocha pozemku
- 1608 m²
- Bazén
- Garáž
- Ano
- Počet garáží
- 1
- Balkón
- Ano
- Plocha balkónu
- 20 m²
- Terasa
- Ano
- Plocha terasy
- 25 m²
- Plocha zahrady
- 1492 m²
- Počet podlaží budovy
- 3
- Výtah
- Ne
- Rok výstavby
- 2011
- Datum nastěhování
- 1. 10. 2025
- Telekomunikace
- Internet, Satelit
- Typ internetu
- Vzduchem
- Topení
- Lokální tuhá paliva, Ústřední plynové
- Topné těleso
- Podlahové, Radiátory, Krb
- Zdroj topení
- Plynový kond. kotel, Krb
- Zdroj teplé vody
- Plynový kond. kotel
- Doprava
- Vlak, Dálnice, Silnice, MHD, Autobus
- Elektřina
- 230V, 400V
- Voda
- Vodovod
- Odpad
- Veřejná kanalizace
- Plyn
- Plynovod
- Komunikace
- Asfaltová
- Možnost parkování
- Ano
- Míst k parkování
- 2
- Bezbariérový přístup
- Ne
- Třída e. náročnosti
- D
- Vyhláška e. náročnosti
- č. 264/2020 Sb.
- E. náročnost
- 126 kWh/m²/rok











































