Prodej 3+1 109 m²
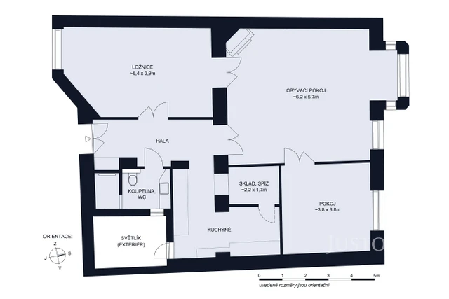
Hledáte byt přímo na Náměstí Přemysla Otakara II., anebo v jeho bezprostřední blízkosti? Ať už pro sebe, pro dlouhodobé pronajímání, anebo k pronájmům krátkodobým? Ve výhradním zastoupení majitele Vám k prodeji nabízíme byt o dispozici 3+1 v ulici Karla IV., v Českých Budějovicích. Byt se nachází v 1. patře (2. nadzemním podlaží) historického zděného domu bez výtahu, s nádhernou eklektickou gotizující fasádou (ověřili jsme na památkovém úřadu). Dům je postavený na území památkové rezervace. Prostorný a světlý obývací pokoj s krbem má nádherné vysoké stropy s ornamenty, které Vás zaujmou. Výhled budete mít přímo do ulice a na také na náměstí. Přestože můžete na fotografiích vidět moderní, plně vybavenou kuchyň (plynový sporák, digestoř, lednice, myčka, trouba) majitel při rekonstrukci ctil atmosféru celého bytu. Samozřejmě nechybí vkusná koupelna se sprchovým koutem, umyvadlem a toaletou. V zimě Vás určitě potěší podlahové vytápění (koupelna, chodba, kuchyň). O ohřev vody a vytápění se v bytě stará plynový kotel. Neprůchozí ložnice přímo vybízí k odpočinku a její okna jsou orientována do vnitrobloku. Byt se nachází v samotném srdci města a tak není překvapivá skvělá dostupnost veškeré občanské vybavenosti. Na procházku dojdete na oblíbený Sokolák a pak do Stromovky. Pro čerstvé pečivo seběhnete prakticky v županu a nezbytnou úřední administrativu si vyřídíte bleskurychle. Veškeré důležité úřady máte v okolních ulicí. I poštu. Cokoliv Vás napadne je v docházkové vzdálenosti nebo pár minut v dosahu MHD. Večerní zábavu - drink, večeře, koncert, divadlo - si můžete užít naplno a neřešit návrat domů taxíkem. Součástí inzerátu je i 2D orientační půdorys celého bytu a virtuální prohlídka. Chcete přijít na prohlídku tohoto výjimečného bytu? Potřebujete doplnit některé informace a zodpovědět dotazy? Vyplňte prosím formulář u inzerátu. Dostanete odpověď s veškerými informacemi do 20 minut na e-mail, který uvedete. (Zkontrolujte si, prosím, i složky "Spam" a "Nevyžádaná pošta". Občas se tam e-mail může zatoulat.)
- cena
- na dotaz
- adresa
- Karla IV. 104/2, České Budějovice
- ID nabídky
- J10897
- Stav nabídky
- rezervováno
- Budova
- Cihlová
- Stav objektu
- Velmi dobrý
- Plocha užitná
- 109 m²
- Celková plocha
- 109 m²
- Vybavení
- Částečně
- Umístění objektu
- Centrum obce
- Vlastnictví
- Osobní
- Ochrana
- Památková zóna
- Podlaží
- 2
- Počet podlaží budovy
- 5
- Výtah
- Ne
- Rok rekonstrukce
- 2015
- Rok výstavby
- 1904
- Datum nastěhování
- 1. 12. 2025
- Telekomunikace
- Internet
- Topení
- Lokální plynové
- Voda
- Vodovod
- Odpad
- Veřejná kanalizace
- Bezbariérový přístup
- Ne
- Třída e. náročnosti
- G
- E. náročnost
- 593 kWh/m²/rok






















